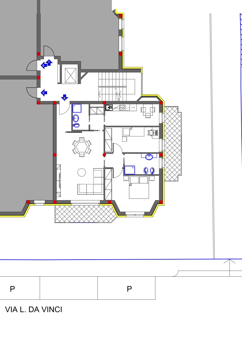
Appartamento n. 08 (Trilocale)
Caratteristiche:
- Tipologia: Appartamento
- Contratto: Vendita
- Piano: 1
- Superficie: 115 m²
- Locali: 3
- Bagni: 2
- Balcone: Sì
- Giardino: Giardino comune
- Piani edificio: 2
- Ascensore: Sì
- Accesso disabili: Sì
- Infissi: esterni in doppio vetro / PVC
Efficienza energetica A4 Consumo di energia ≥ 3,51 kWh/m² anno
Caratteristiche appartamenti in Nuova Costruzione:
VENDITA DIRETTA!
Nuova Costruzione residenziale, 12 appartamenti e boxes in edilizia eco-sostenibile.
Possibilità di 2 – 3 – 4 locali.
Giardini esclusivi o ampie mansarde con h.max mt. 4,00
• Impianto di riscaldamento con pannelli radianti a pavimento indipendente per ogni unità immobiliare con pompa di calore centralizzata aria/acqua alimentata da pannelli fotovoltaici da 20KW di potenza sulla copertura del tetto.
• Batterie di accumulo del fotovoltaico, per un maggior sfruttamento dell’energia creata.
• Impianto acqua sanitaria con sistema di accumulo nel locale tecnico, tramite caldaia a condensazione.
• Impianto di Ventilazione Meccanica Controllata centralizzata, con recupero di calore, per sanificazione dell’aria e deumidificazione degli ambienti.
• Predisposizione per piani di cottura ad induzione delle cucine
• Tapparelle motorizzate per finestre e portefinestre.
• Predisposizione aria condizionata, predisposizione impianto elettrico connesso e predisposizione antifurto.
• Tamponamenti muri perimetrali esterni con cappotto da 15 cm, atti a garantire la tenuta termica ed acustica di legge.
• Serramenti esterni in Pvc colore rovere chiaro, con doppio vetro (con gas Argon), con tenuta acustica da 38 Db e trasmittanza termica inferiore a 1,30 W/m2K.
• Copertura tetto in lastre di lamiera zincata coibentata, color grigio chiaro.
• Sistema di raccolta dell’acqua piovana completa di rete e di cisterna, da riutilizzare nel condominio.
• Elementi frangisole posizionati sui balconi dei soggiorni, a protezione dell’irraggiamento solare.
• Parapetti in vetro, su alcune parti dei balconi.
Edificio ad impatto climatico quasi nullo, con unità immobiliari progettate e con futura certificazione energetica in classe A3 ed A4.
Servizi e Tempo Libero in zona:
Appartamenti di nuova costruzione a Pioltello in Via Leonardo da Vinci
Vendita Diretta, Nuova Costruzione residenziale
12 appartamenti e boxes in edilizia eco-sostenibile
disponibilità di 2, 3, 4 locali
con Giardini esclusivi e con ampie Mansarde
A pochi minuti da: Cernusco sul Naviglio, Segrate, Vimodrone, Vignate, Melzo, Liscate, Cologno Monzese, Novegro, Linate, Lambrate, Rodano, Seggiano, Limito
Servizi nelle vicinanze:
• Metropolitana MM2 Vimodrone, Cernusco s/N, Cassina de Pecchi, Gorgonzola
• Stazione ferroviaria treni Lambrate, Vignate, Pioltello Limito, Melzo
• Aeroporto di Milano Linate
Tempo libero nelle vicinanze:
• Parco Idroscalo di Milano
• Parco Forlanini
• Parco Lambro
Altri servizi in zona:
• Ospedale Cernusco s/N
• Ospedale Pioltello
• Ospedale San Raffaele
